2025 Workshop – Coastal Lines. Mediterranean Retreat for Elderly in the Age of Global Warming / Hrvoje Njiric
Cover image by MCH students Ahn, Gutierrez, Hernández
Workshop Leader: Hrvoje Njiric
Workshop Assistant: Derrick Christensen


Site image
Faced with rising sea levels and the transformation of the Mediterranean coastline, this project envisioned a new urban typology: a hybrid zone that merged climate resilience with cultural memory. Tidal gardens, saltwater channels, and adaptive topographies shaped a seafront that moved with the water rather than resisting it. Inspired by mythological narratives and marine ecologies, the design became a contemporary altar to change—tactical, porous, and poetic.
At the heart of this vision stood a reinterpretation of Kastilac, located in the coastal area of Kaštela, in Croatia’s Dalmatian region, near Split. This “new fortress” was conceived not as a defense against nature, but as a sanctuary that embraced it. It served as a temporary or permanent home for senior citizens from across Europe, offering a meaningful life in a climate-adapted environment by the sea.

Site plan by MCH students González, Molina
Section by MCH students Begino, Candano, Maestre
The settlement functioned as more than an architectural intervention: it acted as an urban catalyst negotiating between sea, land, and community. It addressed the challenges of climate change, urban entropy, and uncontrolled urbanization, transforming vulnerabilities into opportunities for regeneration: urban greening, food production, and the creation of inclusive, pluralistic educational habitats.
Incorporating these themes into architectural education allowed future professionals to rethink ways of inhabiting space, integrating intergenerational communities and promoting collective appropriation of public space. It encouraged an architecture beyond standardization—one engaged with the social and environmental realities of the time.


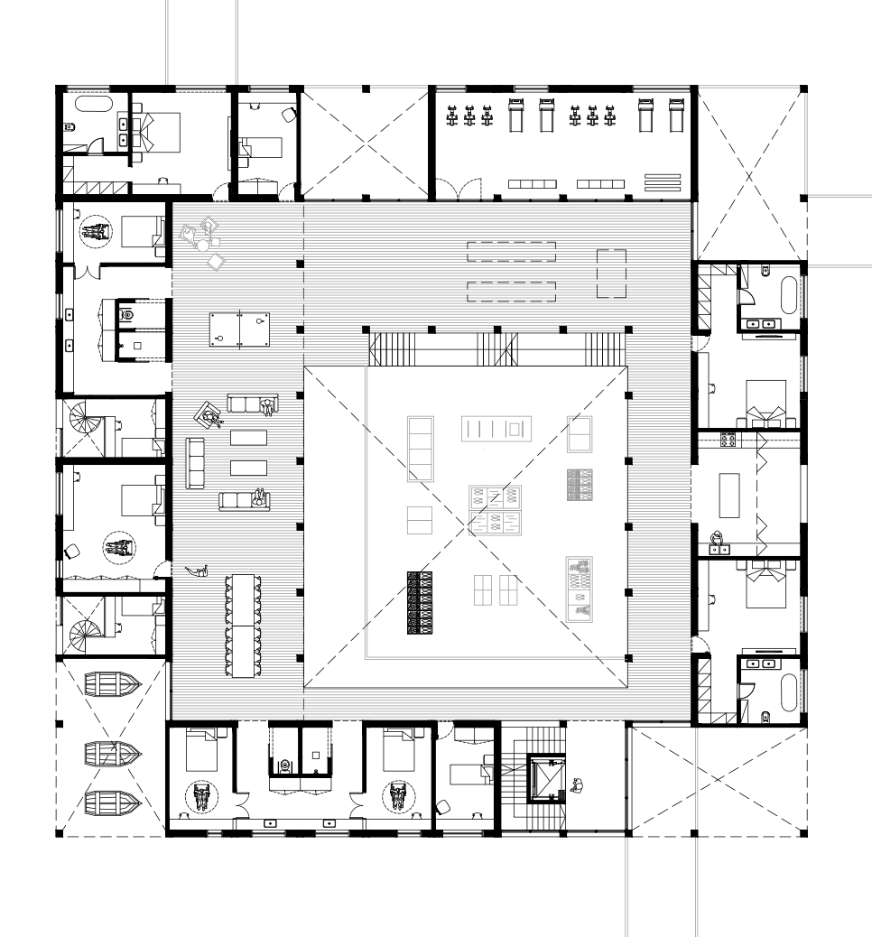
Floor plan image by MCH students Carassale, Izquierdo, Peppa
The integration of the elderly population was especially relevant in countries like Spain and Croatia, where older adults represented a significant demographic. In both contexts, home-based care predominated over institutional models, highlighting the need for inclusive architectural solutions.
The study of Kastilac, built in the 16th century by Benedictine nuns as both a refuge and a defensive structure against Ottoman incursions, revealed its strategic and architectural value. Situated on a small islet and connected by a stone bridge, it featured robust walls, a compact layout, and a functional aesthetic. This historical legacy offered valuable insights for imagining resilient, sustainable, and inclusive futures in the face of climate and social crises.
The final session included a review by professors Elena Orte (SUMA Architecture) and Esperanza Campaña (Salto), who shared their insights with the workshop’s students and faculty.
About Hrvoje Njiric.
About Derrick Christensen
Author: Camilo Meneses. MCH Manager


