2025 Workshop – Learning from Tokyo / Momoyo Kaijima
Cover image by students Candano, Kordjanbaklou, Fatourou-sipsi, Molina
Workshop Leader: Momoyo Kaijima
Workshop Assistant: Alberto Nicolau
Date: 1st to 5th of September
THE ISSUE
In major European cities, urban centers are under relentless real estate pressure, gradually pushing middle-class residents toward the outskirts. Cities like London and Paris experienced this trend decades ago, but in the last twenty years, gentrification has surged in Madrid. Today, young people often find access to central housing almost impossible.
Faced with this challenge, we must ask ourselves: should we abandon city centers, or are there alternative ways of living? Perhaps it is time to rethink traditional housing, to imagine inventive solutions that respond to the city of 2025.
This workshop revolves around two central questions: theme and method.
Theme: We aim to challenge conventional residential types and explore the new frontiers of collective housing. What could the future of living together look like in densely populated cities?
Method: Our approach is hands-on. By making physical models and drawing by hand, we reconnect with the tactile side of design, letting ideas emerge directly from our minds and fingertips.

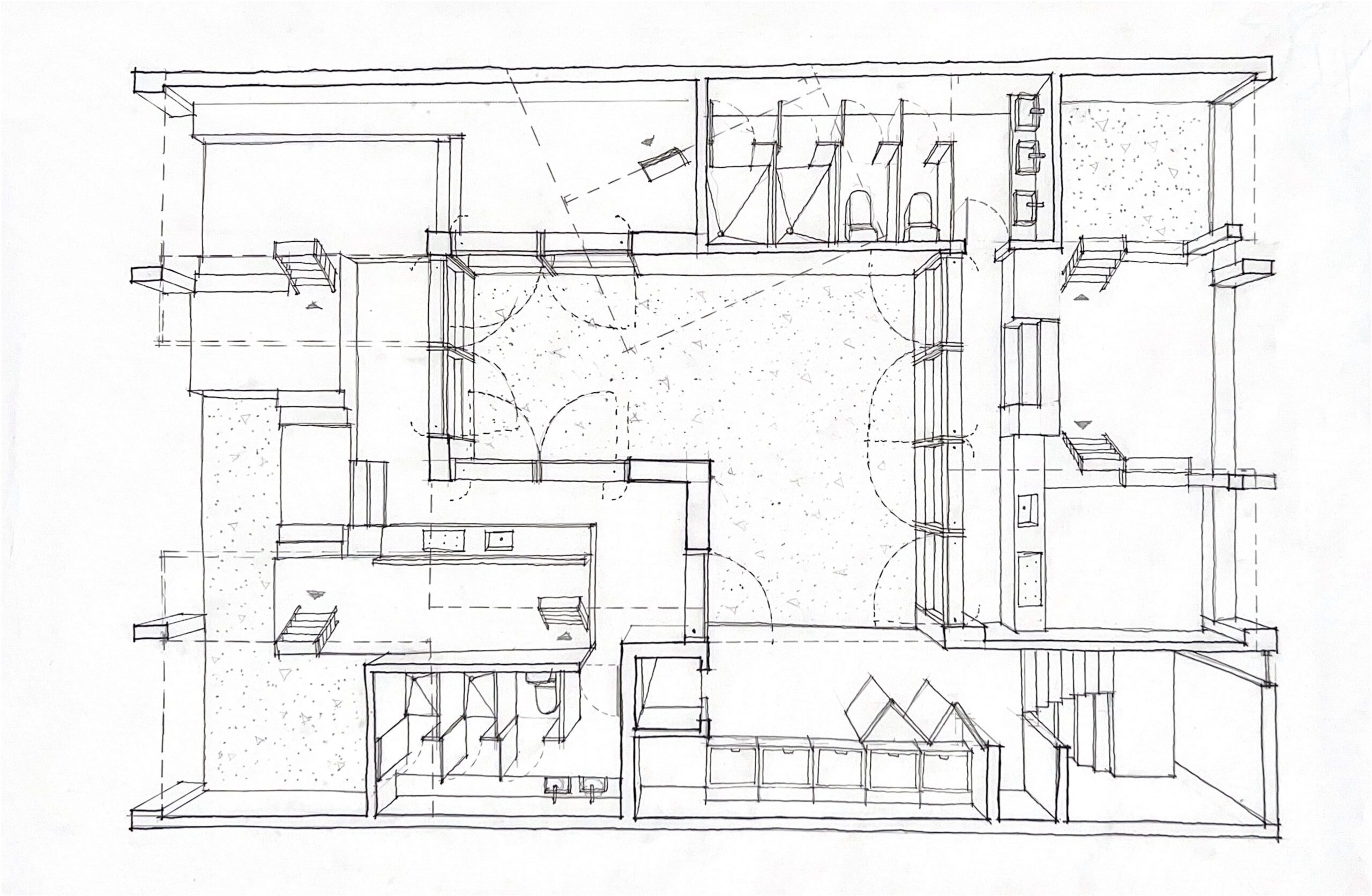
Floor plan by students Hernández, Cantú, Chahuan, Maestre
THE ASSIGNMENT
Your task is to redesign a former industrial building, imagining new ways of living without destroying the existing structure. To guide your exploration, we look to Tokyo, a city where creative housing solutions flourish despite extreme density.
Your project should respond to three key concepts: MINIMUM, FLOOR, and WINDOW.
Deliverables:
– A study model at 1:20 scale.
– Hand drawings at 1:20 scale, including: Perspective plan, Perspective section, Floor/furniture detail, Window detail
Through this exercise, you will discover how imagination, careful observation, and hands-on experimentation can transform the challenges of urban life into opportunities for innovative living.
Image of models by MCH students
About Momoyo Kaijima
About Alberto Nicolau
Author: Camilo Meneses. MCH Manager


