2024 Specialty – Construction and Technology / Ignacio Fernández Solla
Detail by students Mandi, Martínez, Sonawane, Ucha, Yasser
Specialty Leader – Ignacio Fernández Solla
Team – Archie Campbell / Diego García- Setién / David Castro
Construction and technology emphasizes the concept that buildings are like entities and that ongoing progressive industrialisation has made possible to understand the different parts of it. The building envelope, services, technologies, structure and materiales are all part of an industrialised process. The assignment consists of taking an international reference and transferring it to another part of the world, questioning how the different parts of it should adapt to the new environmental and cultural conditions.
Buiding envelopes
The building envelope is the surface through which a building interacts with the external environment. It is the skin of the building. Among the main functions of the envelope are: support, environmental control and become the image of the building. These functions have changed in the history of architecture. Nowadays, the envelope tends to be non-bearing, transparent, lightweight, prefabricated, passive and active environmentally.

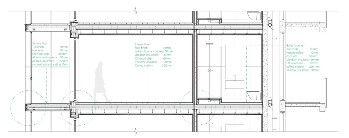
Final submission by students Christensen, Madrigal, Maldonado, Patel, Sahin
Industrialised housing
Why is better to industrialise construction? This is the first question asked in this lecture. The reasons are very simple: the works are better, faster, greener and safer. This is because the building parts are bigger, lesser, lighter and richer. The concept of knolling is introduced, an important one to understand how to differentiate the components of the building in order to think of how to assemble the parts.

Final submission by students Christensen, Madrigal, Maldonado, Patel, Sahin
Building services and tech
This topic relates directly to human comfort inside a building. Traditionally, services are also the main component affecting energy consumption and sustainability issues in architecture. How to achieve a comfortable environment with less energy is the main issue and it is discussed that this relates specifically to the initial climatic conditions of the building. Services also relate to water installations and the concerns around reducing consumption and reutilization of this scarce resource.

Final submission by students Christensen, Madrigal, Maldonado, Patel, Sahin
Structural Materials and Techniques
A very comprehensive overview of structures and material techniques is presented making emphsais on those related to collective housing. The main concrete and steelwork kind of structures are discussed, alongside more natural timber and bamboo materials. Case studies related to industrialised structures and sustainability are important in this topic to understand the pertinence of these issued in contemporary architecture.

Final submission by students Christensen, Madrigal, Maldonado, Patel, Sahin
About Diego García- Setién


